Casa indipendente in vendita

Fano, Via Belgatto - Belgatto
€ 350.000
6 locali 6 locali
365 Mq 365 Mq
2 bagni 2 bagni

Casa indipendente in vendita

Fano, Via Belgatto - Belgatto

Descrizione annuncio

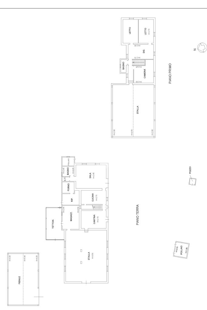
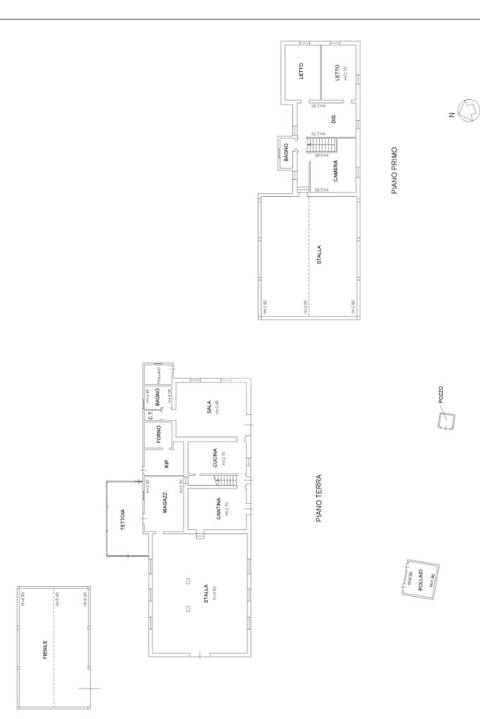
Nel cuore della tranquilla località di Belgatto, nel comune di Fano, si trova una spaziosa casa indipendente in vendita. Costruita nel 1960, questa proprietà si estende su 365 mq distribuiti su più livelli, offrendo ampi spazi per ogni esigenza abitativa. La struttura, appartenente alla categoria civile, è ideale per chi cerca una residenza che coniughi comfort e funzionalità. Gli interni, ben distribuiti, permettono di personalizzare gli ambienti secondo il proprio stile e necessità. La posizione strategica garantisce un facile accesso ai servizi locali, pur mantenendo la serenità di una zona residenziale. Questa casa rappresenta un'opportunità unica per chi desidera vivere in un contesto tranquillo senza rinunciare alla comodità della città.

Mostra tutto

Nelle vicinanze

Trasporto pubblico Trasporto pubblico
Trasporto pubblico
2,1 Km
Scuole Scuole
Scuola materna Il Girasole
970 m
Scuola Elementare Centinarola
1,1 Km
Scuola Elementare Raffaello Sanzio
1,5 Km
Scuola secondaria di primo grado Matteo Nuti
1,7 Km
Scuola dell'infanzia Carlo Collodi
1,9 Km
Farmacia Farmacia
Farmacia Centinarola
1,1 Km
Farmacia Damiani
1,4 Km
Farmacia Ercolani
1,6 Km
Farmacia Gamba
1,7 Km
Myfarma
2,1 Km
Supermercati Supermercati
Conad Superstore Flaminio
1,8 Km
Coop
1,9 Km
Tuodì
1,9 Km
COAL
2,0 Km
Naturasì Fano
2,1 Km
Negozi Negozi
Panificio Longhini
1,9 Km
Negozi
2,4 Km
Panificio
2,5 Km
BEEN
2,5 Km
Tezenis
2,6 Km
Bar Bar
Bar 100 Role
1,1 Km
Bar Franco
1,1 Km
Bar pizzeria Il Mulino
1,3 Km
Bar Badioli
1,6 Km
Bar Nazionale
1,7 Km
Ristoranti Ristoranti
Ristorante Penna Bianca
1,1 Km
Ristoranti
1,5 Km
Ristorante da Fiore
1,8 Km
Trattoria da Carla
2,2 Km
La Mandria
2,3 Km
Mostra tutto

Caratteristiche

Rif.:
61166615
Piano:
2 di 2 (Piano su più livelli)
Box:
2
Posti auto:
2
Camere da letto:
4
Arredamento:
Assente
Mostra tutto
Prezzo Prezzo
€ 350.000
Rata mutuo Rata mutuo
€ 1.634 / mese
Proponi il tuo prezzoProponi il tuo prezzo

Classe Energetica

G
G
G
G
G
G
G
G
G
EP globale non rinnovabile:
325.20 kW h/m² anno
EP globale rinnovabile:
41.10 kW h/m² anno
EP invernale del fabbricato:
EP estiva del fabbricato:
Anno di costruzione:
1960
Riscaldamento:
Autonomo
Tipo impianto:
A radiatori
Tipo alimentazione:
GPL

Ti interessa visionare l'immobile?

Fissa un appuntamento  Fissa un appuntamento

Richiedi informazioni

Clicca su Leggi per aprire l'informativa
* Questi campi sono obbligatori

Calcola il tuo mutuo

Semplice e senza impegno
Anticipo

( % )
Mutuo

( % )

pochi semplici passi

inserisci i tuoi dati
Questionario completato
Grazie per aver richiesto un appuntamento senza impegno con un nostro Consulente del Credito e Assicurativo.

Hai inserito correttamente tutti i dati necessari e a breve riceverai una e-mail con un link da convalidare per inviare i tuoi dati.
Affiliato
Le Case Di Pesaro Srl
Corso XI Settembre, 181 61121 Pesaro (PU)

Il nostro staff


  • Giancarmine Villanacci
    Affiliato

  • Paolo Cannavacciuolo
    Collaboratore

  • Noemy Croce
    Collaboratrice

  • Luisa Minicozzi
    Affiliata
Corso XI Settembre, 181 61121 Pesaro (PU)
Zona: Centro-Mare-Centro Storico-Porto-Soria-Tombaccia-Baia Flaminia-Pantano-Villa San Martino-Vismara
Mostra su mappa
Orari: lun- ven 9.00 13.00 15.30-19.30 sab 9.00 13.00
Affiliato
Le Case Di Pesaro Srl
Corso XI Settembre, 181 61121 Pesaro (PU)

2026 Tecnocasa Franchising S.p.A. - P. IVA 08365160152 - Via Monte Bianco 60/A 20089 Rozzano (MI). Ogni agenzia ha un proprio titolare ed è autonoma. Privacy policy | Policy utilizzo | Cookie policy