Bilocale in vendita

Pesaro, Via Cortirola - Centro
€ 125.000
2 locali 2 locali
48 Mq 48 Mq
2 bagni 2 bagni

Bilocale in vendita

Pesaro, Via Cortirola - Centro

Descrizione annuncio

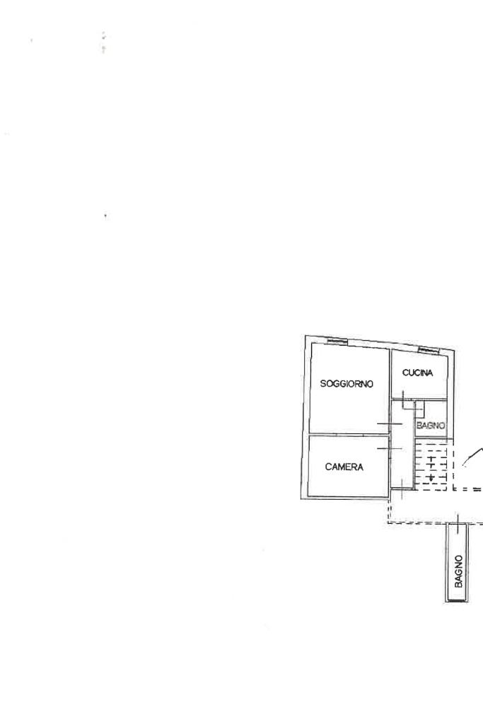
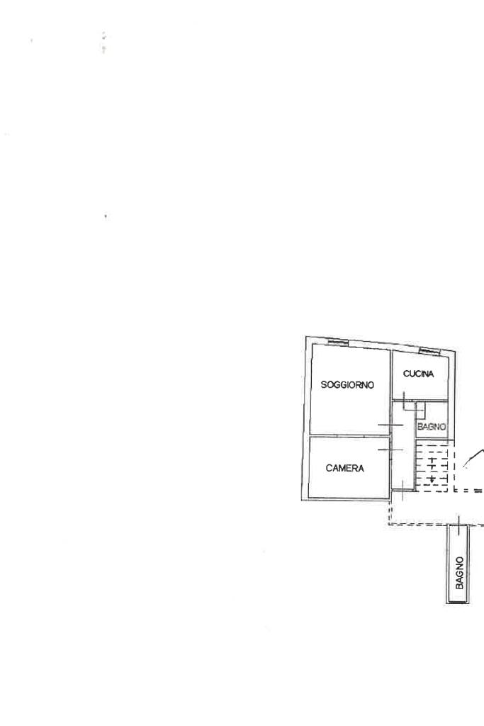
Nel cuore del centro di Pesaro, proponiamo un bilocale libero subito situato al primo piano di un palazzo ristrutturato.

L'immobile, di 48 mq, offre una disposizione funzionale con una camera da letto,soggiorno e ripostiglio. La presenza di due bagni rappresenta un vantaggio significativo: uno dei bagni è esterno all'appartamento, ideale per chi desidera rinfrescarsi al ritorno dal mare prima di entrare in casa.

La caldaia a condensazione garantisce un'efficienza energetica ottimale, mentre gli infissi in doppio vetro in alluminio assicurano un buon isolamento termico e acustico e viene venduto completamente ammobiliato.

l'appartamento combina il fascino del passato con i comfort moderni, rendendolo una scelta interessante per chi cerca una soluzione abitativa pratica e ben posizionata nel centro cittadino.

Mostra tutto

Nelle vicinanze

Trasporto pubblico Trasporto pubblico
stazione di Pesaro
stazione di Pesaro
660 m
Trasporto pubblico
1,2 Km
Ricariche auto elettriche Ricariche auto elettriche
CONAD Pesaro | EnelX
250 m
Eneldrive Parcheggio Il Curvone
530 m
EnelX Eva+ Conad Superstore Pesaro
2,6 Km
Scuole Scuole
Scuola Media Don Gaudiano
400 m
Liceo Classico "Mamiani"
730 m
La Nuova Scuola
970 m
Scuola Media Statale Annibale Olivieri
1,0 Km
università
1,0 Km
Farmacia Farmacia
Farmacia Penserini - Maffei
310 m
Farmacia Antonioli
520 m
Farmacia Ruggeri
530 m
Farmacia Comunale Soria
580 m
Farmacia Sant'Antonio
610 m
Ospedali Ospedali
Ospedale San Salvatore di Pesaro sede centrale
500 m
Supermercati Supermercati
Conad
210 m
Coop
480 m
Ipercoop Miralfiore
1,4 Km
Simply Market
1,5 Km
Super A&O
2,1 Km
Negozi Negozi
Negozi
500 m
Mercato del pesce
970 m
Paper Surf
1,2 Km
Bar Bar
Bar Carla 1989
110 m
Bar Antaldi
310 m
Circolo Mengaroni
410 m
Centralino
540 m
Bar
580 m
Ristoranti Ristoranti
Trattoria "da Sante"
200 m
Ristorante Cinese Pechino
280 m
Kentaro
320 m
Ristoranti
470 m
C'Era Una Volta
590 m
Mostra tutto

Caratteristiche

Rif.:
61120941
Piano:
1 di 2 (Piano basso)
Camere da letto:
1
Arredamento:
Completo
Condizionamento:
Assente
Ascensore:
No
Mostra tutto
Prezzo Prezzo
€ 125.000
Rata mutuo Rata mutuo
€ 578 / mese
Proponi il tuo prezzoProponi il tuo prezzo

Classe Energetica

G
G
G
G
G
G
G
G
G
EP globale non rinnovabile:
108.08 kW h/m² anno
EP globale rinnovabile:
108.08 kW h/m² anno
EP invernale del fabbricato:
EP estiva del fabbricato:
Anno di costruzione:
1967
Riscaldamento:
Autonomo
Tipo impianto:
A radiatori
Tipo alimentazione:
Metano

Ti interessa visionare l'immobile?

Fissa un appuntamento  Fissa un appuntamento

Richiedi informazioni

* Questi campi sono obbligatori

Calcola il tuo mutuo

Semplice e senza impegno
Anticipo

( % )
Mutuo

( % )

pochi semplici passi

inserisci i tuoi dati
Questionario completato
Grazie per aver richiesto un appuntamento senza impegno con un nostro Consulente del Credito e Assicurativo.

Hai inserito correttamente tutti i dati necessari e a breve riceverai una e-mail con un link da convalidare per inviare i tuoi dati.
Affiliato
Le Case Di Pesaro Srl
Corso XI Settembre, 181 61121 Pesaro (PU)

Il nostro staff


  • Giancarmine Villanacci
    Affiliato

  • Paolo Cannavacciuolo
    Collaboratore

  • Noemy Croce
    Collaboratrice

  • Luisa Minicozzi
    Affiliata
Corso XI Settembre, 181 61121 Pesaro (PU)
Zona: Centro-Mare-Centro Storico-Porto-Soria-Tombaccia-Baia Flaminia-Pantano-Villa San Martino-Vismara
Mostra su mappa
Orari: lun- ven 9.00 13.00 15.30-19.30 sab 9.00 13.00
Affiliato
Le Case Di Pesaro Srl
Corso XI Settembre, 181 61121 Pesaro (PU)

2025 Tecnocasa Franchising S.p.A. - P. IVA 08365160152 - Via Monte Bianco 60/A 20089 Rozzano (MI). Ogni agenzia ha un proprio titolare ed è autonoma. Privacy policy | Policy utilizzo | Cookie policy