Negozio in affitto

Pesaro, Via toscanini
€ 600 / mese
4 locali 4 locali
150 Mq 150 Mq
1 bagno 1 bagno

Negozio in affitto

Pesaro, Via toscanini

Descrizione annuncio

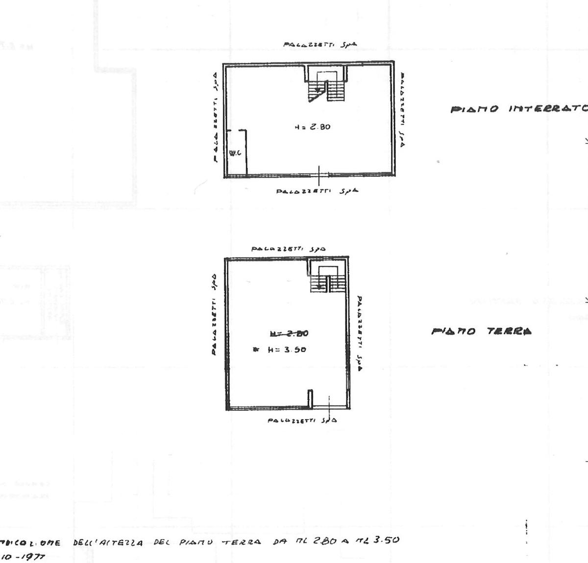
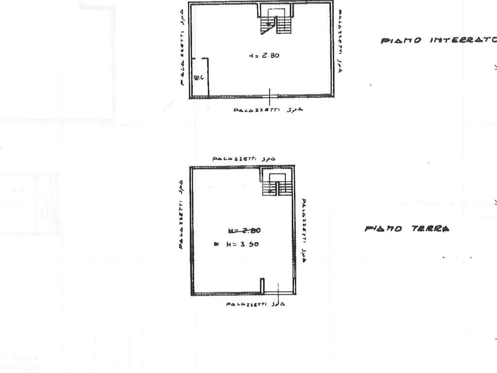
UBICAZIONE: Villa San Martino in zona residenziale all'interno del condominio lungofoglia
COMPOSIZIONE: Locale commerciale o ufficio su due livelli così composto: al piano strada circa 50 mq diviso in tre ambienti e 4 vetrine, al piano interrato di circa 110mq un unico vano oltre al bagno e ingresso alternativo da vano ideale per scarico merci.
possibilità di parcheggiare facilmente davanti
disponibilità immediata, ideale ad uso ufficio

Mostra tutto

Nelle vicinanze

Trasporto pubblico Trasporto pubblico
stazione di Pesaro
stazione di Pesaro
1,3 Km
Trasporto pubblico
750 m
Fermata bus Degli abeti 1
Fermata bus Degli abeti 1
2,3 Km
Ricariche auto elettriche Ricariche auto elettriche
CONAD Pesaro | EnelX
1,7 Km
EnelX Eva+ Conad Superstore Pesaro
1,9 Km
Eneldrive Parcheggio Il Curvone
2,4 Km
Scuole Scuole
Scuola Elementare San Giovanni Bosco
220 m
Scuola elementare Don Lorenzo Milani
230 m
Liceo Scientifico Guglielmo Marconi
620 m
Istituto Tecnico Economico Tecnologico Bramante Genga
660 m
Istituto Professionale per l'Industria e l'Artigianato Giuseppe Benelli
670 m
Farmacia Farmacia
Farmacia Comunale San Martino
490 m
Farmacia G. Rossini
770 m
Farmacia Comunale Andrea Costa
910 m
Farmacia Peroni
1,1 Km
Farmacia Comunale Centro
1,3 Km
Ospedali Ospedali
Ospedale San Salvatore di Pesaro sede centrale
1,6 Km
Struttura Socio Sanitaria
1,6 Km
Supermercati Supermercati
Simply Market
390 m
Ipercoop Miralfiore
830 m
Dpiù
970 m
Super A&O
1,5 Km
Conad
1,8 Km
Negozi Negozi
Negozi
1,2 Km
OVS
1,8 Km
Discount
1,9 Km
Eurospin
2,1 Km
Paper Surf
2,6 Km
Bar Bar
Bar
850 m
Bar Antaldi
1,7 Km
Bar Carla 1989
1,9 Km
Centralino
2,1 Km
Circolo Mengaroni
2,2 Km
Ristoranti Ristoranti
Angolo della pizza
530 m
America Graffiti
1,0 Km
Osteria La Poderosa
1,1 Km
Kentaro
1,7 Km
Ristoranti
1,8 Km
Mostra tutto

Caratteristiche

Rif.:
61170301
Piano:
2 di 2 (Piano terra)
Posti auto:
1
Condizionamento:
Autonomo
Ascensore:
No
Riscaldamento:
Autonomo
Mostra tutto
Prezzo Prezzo
€ 600 / mese
Spese annue Spese annue
€ 1.200

Altre caratteristiche

Classe Energetica

F
F
F
F
F
F
F
F
F
EP globale non rinnovabile:
100.00 kW h/m² anno
EP globale rinnovabile:
100.00 kW h/m² anno
EP invernale del fabbricato:
EP estiva del fabbricato:
Anno di costruzione:
1978
Riscaldamento:
Autonomo
Tipo impianto:
Ad aria
Tipo alimentazione:
Metano

Ti interessa visionare l'immobile?

Fissa un appuntamento  Fissa un appuntamento

Richiedi informazioni

Clicca su Leggi per aprire l'informativa
* Questi campi sono obbligatori
Affiliato
Le Case Di Pesaro Srl
Corso XI Settembre, 181 61121 Pesaro (PU)

Il nostro staff


  • Giancarmine Villanacci
    Affiliato

  • Paolo Cannavacciuolo
    Collaboratore

  • Noemy Croce
    Collaboratrice

  • Luisa Minicozzi
    Affiliata
Corso XI Settembre, 181 61121 Pesaro (PU)
Zona: Centro-Mare-Centro Storico-Porto-Soria-Tombaccia-Baia Flaminia-Pantano-Villa San Martino-Vismara
Mostra su mappa
Orari: lun- ven 9.00 13.00 15.30-19.30 sab 9.00 13.00
Affiliato
Le Case Di Pesaro Srl
Corso XI Settembre, 181 61121 Pesaro (PU)

2026 Tecnocasa Franchising S.p.A. - P. IVA 08365160152 - Via Monte Bianco 60/A 20089 Rozzano (MI). Ogni agenzia ha un proprio titolare ed è autonoma. Privacy policy | Policy utilizzo | Cookie policy