Bifamiliare in vendita

Pesaro, Via Bologna - Santa Maria Delle Fabbrecce
€ 195.000
6 locali 6 locali
254 Mq 254 Mq
2 bagni 2 bagni

Bifamiliare in vendita

Pesaro, Via Bologna - Santa Maria Delle Fabbrecce

Descrizione annuncio

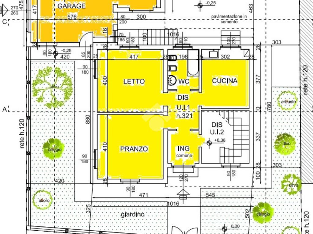
PESARO Santa Maria delle Fabbreccce, si propone in vendita una Casa Bifamiliare di 250 Mq. commerciali completamente DA RISTRUTTURARE. L'immobile, distribuito su più livelli, offre una soluzione ideale per chi cerca un investimento versatile. La proprietà è già suddivisa in due unità abitative, permettendo diverse possibilità di utilizzo, sia per famiglie numerose che per chi desidera una rendita locativa. Ogni unità gode di ampi spazi interni, con sei locali complessivi oltre al piano sottotetto-mansarda, e si distingue per la luminosità naturale che pervade gli ambienti. All'esterno, un terrazzo e un giardino privato offrono spazi ideali per il relax e le attività all'aperto. La proprietà ha un’ampio Garage di 36 Mq. e la possibilità di creare nello scoperto interno diversi posti auto, assicurando comodità e praticità. L'immobile è DA RISTRUTTURARE, rappresentando un'opportunità per personalizzare gli spazi secondo le proprie esigenze. Questa bifamiliare rappresenta un'opportunità interessante per chi desidera investire in una zona servita e ben collegata, con un prezzo competitivo che riflette il potenziale di trasformazione e valorizzazione dell'immobile.

Mostra tutto

Nelle vicinanze

Trasporto pubblico Trasporto pubblico
stazione di Pesaro
stazione di Pesaro
1,6 Km
Fermata bus Degli abeti 1
Fermata bus Degli abeti 1
1,9 Km
Trasporto pubblico
2,0 Km
Ricariche auto elettriche Ricariche auto elettriche
CONAD Pesaro | EnelX
1,5 Km
Eneldrive Parcheggio Il Curvone
2,2 Km
Scuole Scuole
Istituto d'istruzione superiore Antonio Cecchi
510 m
Scuola elementare Don Lorenzo Milani
1,2 Km
Scuola Elementare San Giovanni Bosco
1,3 Km
Scuola Media Statale Annibale Olivieri
1,8 Km
Liceo Scientifico Guglielmo Marconi
1,9 Km
Farmacia Farmacia
Farmacia G. Rossini
550 m
Farmacia Comunale Centro
810 m
Parafarmacia Conad
1,5 Km
Farmacia Comunale Soria
1,5 Km
Farmacia Comunale San Martino
1,6 Km
Ospedali Ospedali
Ospedale San Salvatore di Pesaro sede centrale
1,8 Km
Struttura Socio Sanitaria
2,5 Km
Supermercati Supermercati
Simply Market
1,1 Km
Supermercati
1,3 Km
Iper Conad
1,5 Km
Conad
1,5 Km
Ipercoop Miralfiore
1,7 Km
Negozi Negozi
OVS
1,4 Km
Eurospin
1,8 Km
Paper Surf
1,8 Km
Mercato del pesce
2,0 Km
Negozi
2,1 Km
Bar Bar
Bar Antaldi
1,8 Km
Novavita
1,8 Km
Bar Carla 1989
1,8 Km
Bar
1,8 Km
Circolo Mengaroni
2,1 Km
Ristoranti Ristoranti
Bel Sit
1,2 Km
Il Falco
1,3 Km
Angolo della pizza
1,6 Km
Mar'aviglia
1,6 Km
Old Wild West
1,6 Km
Mostra tutto

Caratteristiche

Rif.:
61040163
Piano:
Su più livelli di 3
Totale piani:
3
Box:
1
Posti auto:
4
Balconi:
2
Mostra tutto
Prezzo Prezzo
€ 195.000
Rata mutuo Rata mutuo
€ 919 / mese
Spese annue Spese annue
€ 1
Proponi il tuo prezzoProponi il tuo prezzo
Immobile valutato con T·Valuta

Classe Energetica

G
G
G
G
G
G
G
G
G
EP globale non rinnovabile:
119.30 kW h/m² anno
EP globale rinnovabile:
0.00 kW h/m² anno
EP invernale del fabbricato:
EP estiva del fabbricato:
Anno di costruzione:
1960
Riscaldamento:
Autonomo
Tipo impianto:
A radiatori
Tipo alimentazione:
Metano

Ti interessa visionare l'immobile?

Fissa un appuntamento  Fissa un appuntamento

Richiedi informazioni

Clicca su Leggi per aprire l'informativa
* Questi campi sono obbligatori

Calcola il tuo mutuo

Semplice e senza impegno
Anticipo

( % )
Mutuo

( % )

pochi semplici passi

inserisci i tuoi dati
Questionario completato
Grazie per aver richiesto un appuntamento senza impegno con un nostro Consulente del Credito e Assicurativo.

Hai inserito correttamente tutti i dati necessari e a breve riceverai una e-mail con un link da convalidare per inviare i tuoi dati.
Affiliato
Le Case Di Pesaro Srl
Corso XI Settembre, 181 61121 Pesaro (PU)

Il nostro staff


  • Giancarmine Villanacci
    Affiliato

  • Paolo Cannavacciuolo
    Collaboratore

  • Noemy Croce
    Collaboratrice

  • Luisa Minicozzi
    Affiliata
Corso XI Settembre, 181 61121 Pesaro (PU)
Zona: Centro-Mare-Centro Storico-Porto-Soria-Tombaccia-Baia Flaminia-Pantano-Villa San Martino-Vismara
Mostra su mappa
Orari: lun- ven 9.00 13.00 15.30-19.30 sab 9.00 13.00
Affiliato
Le Case Di Pesaro Srl
Corso XI Settembre, 181 61121 Pesaro (PU)

2026 Tecnocasa Franchising S.p.A. - P. IVA 08365160152 - Via Monte Bianco 60/A 20089 Rozzano (MI). Ogni agenzia ha un proprio titolare ed è autonoma. Privacy policy | Policy utilizzo | Cookie policy